Work
About us
Contact
Work
About us
Contact
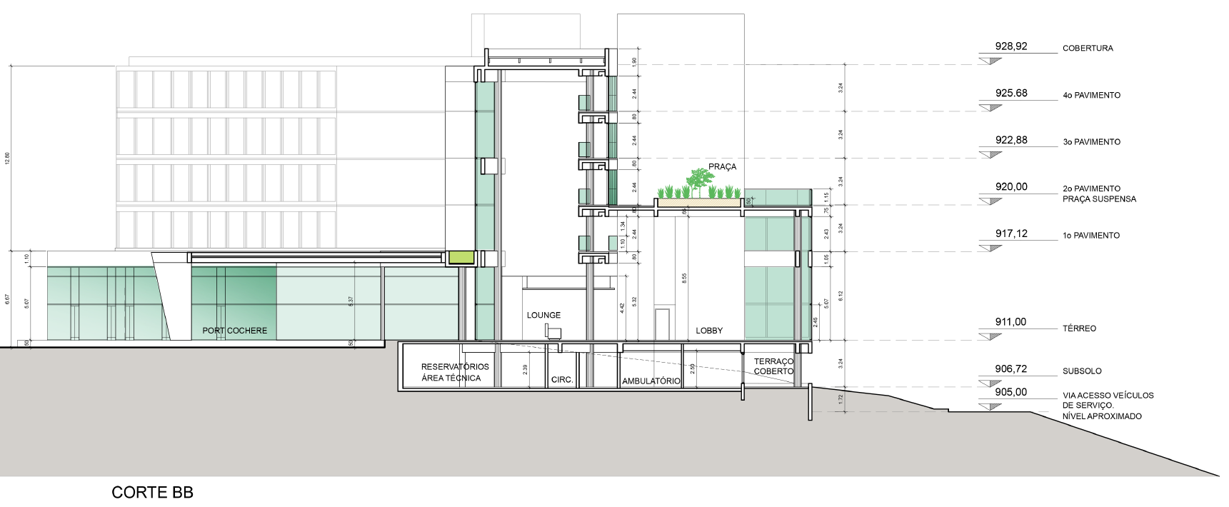
Resort APM
Convention Center, Hotel and Spa Mairiporã SP
Masterplan with Resort and SPA.
Thanks for taking a look!
fred@azmdesign.com.br
↑
Back to Top